


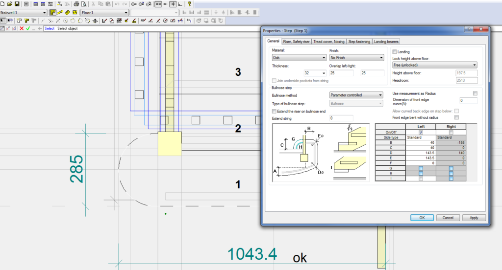
CNC programming and machining for the Wood Industry
We specialize in CNC machine programming for the wood industry, delivering precise and efficient solutions for custom components and production needs. If required, items can be CNC machined as part of our subcontractor services, ensuring high-quality results tailored to your specifications.


